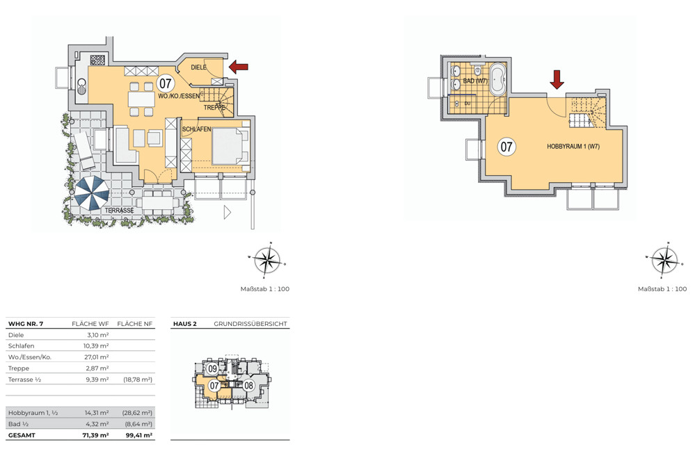
Wohnung 7:
Es entstehen zwei moderne Mehrfamilienhäuser mit insgesamt 13 individuell geschnittenen Wohnungen. Die moderne Wohnanlage in der Sommerstraße 23 / Roggensteinerstraße 152 entsteht in massiver Ziegelbauweise mit Wärmedämmung und hochwertigem Schallschutz.
Alle Wohnungen verfügen über Balkone, Terrassen oder Dachterrassen. Innen sorgen Designböden, Fußbodenheizung und hochwertige Bäder für zeitgemäßen Wohnkomfort.
3-fach verglaste Schallschutzfenster, elektrische Rollläden, Naturstein im Treppenhaus sowie ein Aufzug unterstreichen den gehobenen Standard.
Für nachhaltiges Wohnen sorgt eine zentrale Luftwärmepumpe für Heizung und Warmwasser. Jede Wohnung verfügt über einen Keller, Gegensprechanlage, eigene Zähler sowie Anschlüsse für Telekom und Kabel-TV., 4x Duplexparker / 9x Außenstellplätze.
Weitere Informationen, inklusive Baubeschreibung, entnehmen Sie bitte dem ausführlichen Exposé.














